216 126 ₽/м²
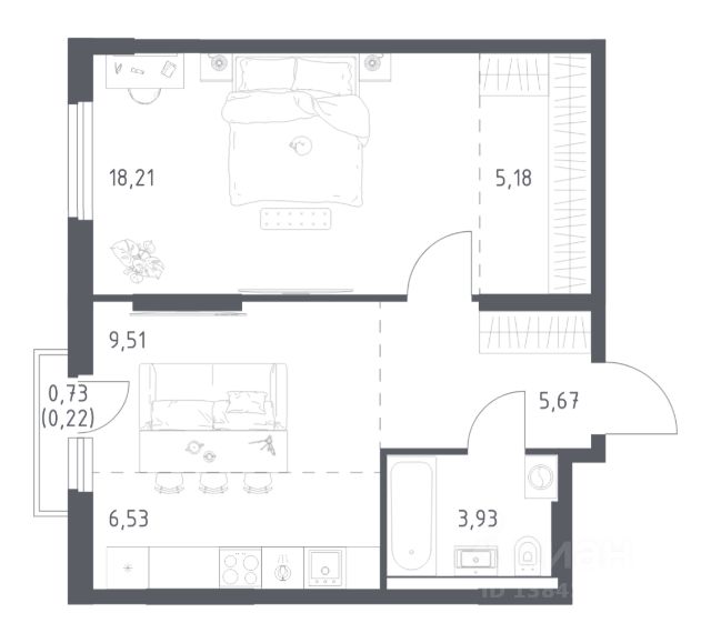
Строим кварталы для жизни с заботой о будущем. Предлагается 1-комнатная квартира комфорт-класса площадью 36.56 кв.м в корпусе 1КВ на 25-м этаже, в жилом комплексе "Урбан Тау". Во всех квартирах будет предчистовая отделка. Мы разведем коммуникации по помещениям, выровняем и оштукатурим стены, подготовим пол к чистовому покрытию. Ваша будущая квартира встретит финишным ремонтом. Останется выбрать, какие оттенки будут в вашем интерьере. Доступность дополнительных опций уточняйте у застройщика Приобрести квартиры возможно по специальным акциям от застройщика, с текущими условиями акций можно ознакомиться в блоке "Акций". Цена динамическая и может отличаться, уточняйте актуальность у застройщика. Жилой комплекс "Урбан Тау" располагается в самом сердце микрорайона Зеленая Роща, откуда удобно добираться в любую точку города. Деловые встречи, прогулки с друзьями или культурные мероприятия — вы легко будете успевать всюду. Если вы за рулем, то за 2 минуты доберетесь до проспекта Салавата Юлаева, который проходит через весь город. А дальше стройте маршрут до нужной локации — магазинов, офиса или театра. Например, в центре вы окажетесь через 13 минут на авто. Поездки по городу будут быстрыми и удобными, даже если вы решите оставить машину дома. Достаточно 3 минут, чтобы дойти до ближайшей автобусной остановки. Путь до аэропорта тоже не займет много времени. 22 минуты на авто — и вы уже у стойки регистрации. Продам 1-комнатную квартиру на улице Минигали Губайдуллина в городе Уфа.
























































































