


182 400 ₽/м²
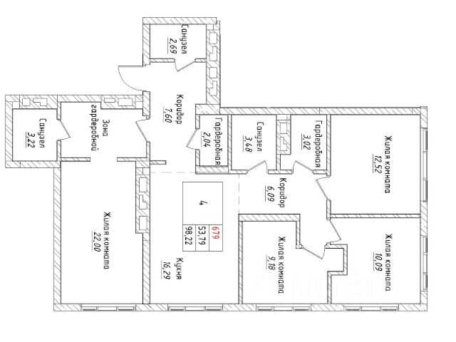
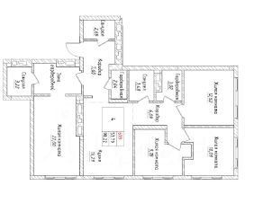
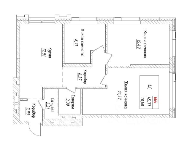
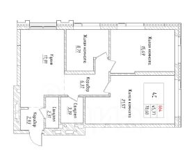
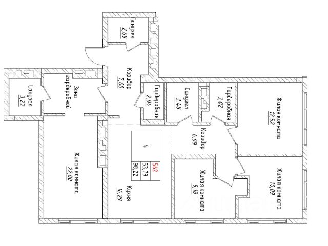
Ваша будущая 4 комнатная квартира 65,67 кв.м. с продуманной планировкой: спальня — 10,55; 11,56; 8,83 кв.м. кухня-гостиная — 18,34 кв.м. прихожая — 3,16 кв.м. высота потолков — 2,7 кв.м. отделка — предчистовая Успейте купить по выгодным ценам на старте продаж! Подберем лучшую программу покупки для вас: Семейная ипотека IT-ипотека Военная ипотека Стандартная ипотека Готовая жизнь "здесь и сейчас": Потолки до 3 м Паркинг — более 800 машиномест, в том числе подземные, надземные и гостевые места Закрытый двор, охрана, видеонаблюдение по периметру и в подъездах 237 кладовых Площадки для выгула собак Воркаут-зоны и велодорожки Здесь формируется сообщество, где ценят надежность, статус и функциональность пространства для всей семьи. ЖК "Сердце Уфы" — место "не в центре", а в сердце Уфы. Здесь вы сохраните связь с природой и любовь к активному отдыху и будете пользоваться всеми преимуществами городской и транспортной инфраструктуры. Транспортная доступность: 5 минут до проспекта Салавата Юлаева 15 минут до центра города 5 минут пешей прогулки до ближайших остановок 12 минут до выезда из города Можно за 5 минут доехать до зеленого массива при ул. Рихарда Зорге и лесопарка за ул. Менделеева с горнолыжным склоном и трассой для беговых лыж. Еще ближе — до зоны тропы здоровья "Театральная". "Сердце Уфы" — центр притяжения вашей жизни. Все важное для семьи — в пешей доступности. От детского развития до спорта премиум-класса. Это место для динамичного ритма жизни в режиме многозадачности семьи. Дом находится в районе с развитой социальной инфраструктурой. В пешей доступности: детские сады, школы поликлиники, аптеки, медцентр магазины, ПВЗ фитнес-клубы, спа, салоны красоты, рестораны До ТЦ "Планета" — 4 минуты на авто. Успейте оформить сделку по выгодной цене на старте продаж. Приходите в наш офис продаж на чашечку кофе, чтобы лично узнать все детали и забронировать квартиру вашей мечты. Напишите или позвоните нам, чтобы назначить встречу!







































































































































































