Мы используем куки-файлы. Соглашение об использовании
Площадь2 337 м²
Этаж1 из 3
Отчёт о привлекательности объектаУзнайте, насколько помещение и район подходят для вашего бизнеса
Что входит в отчёт
  • Охват населения
  • Пешеходный трафик
  • Автомобильный трафик
  • Средний бюджет семьи по району
  • Арендные ставки рядом
  • Точки притяжения
  • Конкуренты в радиусе 1 км
  • Рекомендации по выбору места для бизнеса
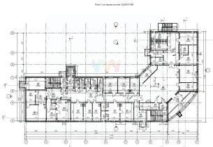
Сдаётся отдельно стоящее здание под медицинскую клинику на красной линии ул. Рощинская, Нагаево (Октябрьский район, Уфа). Адрес: ул. Рощинская, 8б. Земельный участок 5 400 м?. Общая площадь здания 2 337 м?: 1 эт. — 782,2 м?; 2 эт. — 770,97 м?; 3 эт. — 781,16 м?; техпомещения на кровле — 49,59 м?. Напротив — ТК "33 сантиметра". Возможна аренда всего здания или поэтажно. Отделка и состояние: - Сдача "под ключ" в чистовой отделке. - Потолки: армстронг и грильято; стены: декоративная минеральная штукатурка, акриловая окраска, керамическая плитка. - Полы: керамогранит, антистатический линолеум. - Установлены 2 лифта, сантехника. Инженерия и конструктив: - Водоснабжение и водоотведение с очистными сооружениями. - Собственная газовая котельная, электромощность 200 кВт. - Вентилируемый фасад (керамогранит), витражи ПВХ, прозрачное остекление. Доступность и безопасность: - Пандус и удобный вход для МГН, лифты. - Пожарная безопасность: пожарная сигнализация, система оповещения, эваковыходы. Парковка и реклама: - Большая парковка у фасада здания. - Возможна установка вывески и размещение медицинской рекламы на фасаде (по согласованию). Локация: - На красной линии ул. Рощинская, высокий пешеходный и автомобильный трафик. - Густонаселённый район Нагаево, отличная видимость. Условия: - Ввод в эксплуатацию — в течение октября 2025 года. - Детали деления — по запросу.
lock

Войдите или зарегистрируйтесь
для просмотра информации

Просматривайте условия сделки и всю информацию об объекте
Сохраняйте фильтры в поиске и не вводите заново
Доступ к избранному с любого устройства
Неограниченное добавление в избранное
Позвоните автору
Вам ответят на все вопросы
Остались вопросы по объявлению?
Позвоните владельцу объявления и уточните необходимую информацию.
  • Инфраструктура
  • Похожие рядом
  • Общая площадь2 337 м²
Помощь надёжных риелторов
Риелтор партнёр Циан поможет купить или продать любую недвижимость
3 038 100 ₽/мес.
41 539 $/мес.
35 208 /мес.
Цена за метр
15 600 ₽ в год
Налог
УСН
Комиссия
нет
Коммунальные платежи
не включены
Эксплуатационные расходы
не включены
Агентство недвижимости
Документы проверены