Мы используем куки-файлы. Соглашение об использовании
Площадь740 м²
Этаж1 из 3
ПомещениеСвободно
КлассA
Отчёт о привлекательности объектаУзнайте, насколько помещение и район подходят для вашего бизнеса
Что входит в отчёт
  • Охват населения
  • Пешеходный трафик
  • Автомобильный трафик
  • Средний бюджет семьи по району
  • Арендные ставки рядом
  • Точки притяжения
  • Конкуренты в радиусе 1 км
  • Рекомендации по выбору места для бизнеса
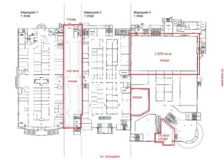
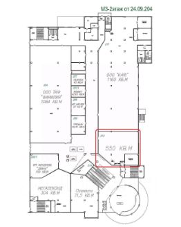
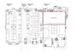
В Черниковке предлагается аренда торговой площади в ТРЦ "Меркурий"! Площадь 740 кв.м. Первый этаж. Высота потолков 3,5 метра. Площадь 1600 кв.м. 1 этаж. Возможно деление на 300 кв.м, 374 кв.м, 740 кв.м. Вход как с улицы по лестнице, так поэтажные проходы внутри между корпусами торгового центра. Зона разгрузки. Грузовой лифт. Высота потолков 4 метра. Площадь на 2 этаже 550 кв.м по ставке 1300 руб/кв.м. Возможно деление на две части по 275 кв.м по ставке 1500 руб/кв.м. Чистовая отделка, готово к работе. Высокие электрические мощности. Зона парковки для клиентов. Все условия для успешной работы торговой деятельности и сферы услуг. Здесь же остановка транспорта "Колхозный рынок". Работают бутики и магазины одежды, всевозможные продуктовые точки, "Ювелир цeнтp", "Rostic"s", кинoтеа Код пользователя: 44800 Номер в базе: 8428823
lock

Войдите или зарегистрируйтесь
для просмотра информации

Просматривайте условия сделки и всю информацию об объекте
Сохраняйте фильтры в поиске и не вводите заново
Доступ к избранному с любого устройства
Неограниченное добавление в избранное
Позвоните автору
Вам ответят на все вопросы
Остались вопросы по объявлению?
Позвоните владельцу объявления и уточните необходимую информацию.
  • Инфраструктура
  • Похожие рядом
Помощь надёжных риелторов
Риелтор партнёр Циан поможет купить или продать любую недвижимость
1 110 000 ₽/мес.

Обеспечительный платёж 1 ₽

14 754 $/мес.
12 510 /мес.
Цена за метр
18 000 ₽ в год
Налог
НДС включен: 200 163 ₽
Комиссия
нет
Коммунальные платежи
не включены
Эксплуатационные расходы
не включены
Агентство недвижимости
Документы проверены
На Циан
10 лет
Объектов в работе
более 4000