Мы используем куки-файлы. Соглашение об использовании
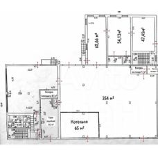
Площадь364 м²
Этаж1 из 2
Выс. потолков6.0 м.
Отчёт о привлекательности объектаУзнайте, насколько помещение и район подходят для вашего бизнеса
Что входит в отчёт
  • Охват населения
  • Пешеходный трафик
  • Автомобильный трафик
  • Средний бюджет семьи по району
  • Арендные ставки рядом
  • Точки притяжения
  • Конкуренты в радиусе 1 км
  • Рекомендации по выбору места для бизнеса
Отапливаемое помещение в мкрн. Инорс под склад. -Калининский район, ул. Фронтовых бригад 10. -Общая площадь 364 кв.м. -Высота потолка 6м -2 ворот на нулевом уровне -Коммуникации: отопление газ, водоснабжение центральное, электричество по заявке. -Территория огорожена, охраняемая. -Подъездные пути для крупногабаритного транспорта. -Офисные помещения на территории. Коммунальные платежи дополнительно. Без комиссии для арендаторов!!!
lock

Войдите или зарегистрируйтесь
для просмотра информации

Просматривайте условия сделки и всю информацию об объекте
Сохраняйте фильтры в поиске и не вводите заново
Доступ к избранному с любого устройства
Неограниченное добавление в избранное
Позвоните автору
Вам ответят на все вопросы
Остались вопросы по объявлению?
Позвоните владельцу объявления и уточните необходимую информацию.
  • Инфраструктура
  • Похожие рядом
  • Общая площадь364 м²
Помощь надёжных риелторов
Риелтор партнёр Циан поможет купить или продать любую недвижимость
  • Документы проверены
  • 8 лет 10 месяцев на Циане
  • 25 объявлений
  • 182 000 ₽/мес.

    Прямая аренда (от года), обеспечительный платёж 182000 ₽, предоплата за 1 месяц

    2 437 $/мес.
    2 078 /мес.
    Цена за метр
    6 000 ₽ в год
    Налог
    УСН
    Комиссия
    нет
    Коммунальные платежи
    не включены
    Эксплуатационные расходы
    не включены
    РиелторИрина Лютина
    Документы проверены