Мы используем куки-файлы. Соглашение об использовании
Площадь50 м²
Этаж1 из 10
ПомещениеСвободно
Отчёт о привлекательности объектаУзнайте, насколько помещение и район подходят для вашего бизнеса
Что входит в отчёт
  • Охват населения
  • Пешеходный трафик
  • Автомобильный трафик
  • Средний бюджет семьи по району
  • Арендные ставки рядом
  • Точки притяжения
  • Конкуренты в радиусе 1 км
  • Рекомендации по выбору места для бизнеса
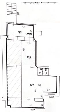
Сдаётся в аренду торговое помещение в районе школы МВД. Помещение расположено в южной части Уфы на пересечении улиц Софьи Перовской и Мубарякова. В непосредственной близости от объекта находятся Уфимский юридический институт МВД России, гостиничный комплекс Президент Отель, ресторан Вкусно и точка. Местоположение объекта отличается интенсивным пешеходным, автомобильным трафиком и удобной транспортной доступностью. ОПИСАНИЕ Красная линия Этаж: 1 Отдельная входная группа Площадь помещения: 52,5 кв.м Открытая планировка Центральные коммуникации Современные инженерные системы Охранно-пожарная сигнализация Реклама на фасаде здания Парковка НАЗНАЧЕНИЕ Торговое КОММЕРЧЕСКИЕ УСЛОВИЯ Размер арендной платы: 42 тыс. руб/мес. Срок аренды: от 11 мес. до 5 лет и более Оплата: ежемесячно Коммунальные платежи: доп. Обеспечительный платеж ПРАВОВОЙ СТАТУС Право собственности на объект недвижимости зарегистрировано в Росреестре. Прямая аренда от собственника, без комиссии.
lock

Войдите или зарегистрируйтесь
для просмотра информации

Просматривайте условия сделки и всю информацию об объекте
Сохраняйте фильтры в поиске и не вводите заново
Доступ к избранному с любого устройства
Неограниченное добавление в избранное
Позвоните автору
Вам ответят на все вопросы
Остались вопросы по объявлению?
Позвоните владельцу объявления и уточните необходимую информацию.
  • Инфраструктура
  • Похожие рядом
  • Тип зданияОфисно-жилой комплекс
  • Площадь участка0 га
  • Общая площадь50 м²
  • Статус участкаВ аренде
Естественная вентиляция
Местное кондиционирование
Центральное отопление
Сигнализация
Помощь надёжных риелторов
Риелтор партнёр Циан поможет купить или продать любую недвижимость
42 000 ₽/мес.

Прямая аренда (от года), минимальный срок аренды 11 месяцев, доступны арендные каникулы, обеспечительный платёж 42000 ₽, предоплата за 1 месяц

558 $/мес.
473 /мес.
Цена за метр
10 080 ₽ в год
Налог
УСН
Комиссия
нет
Коммунальные платежи
не включены
Эксплуатационные расходы
не включены
Агентство недвижимости
Суперагент