Мы используем куки-файлы. Соглашение об использовании
Обновлено: вчера, 12:09

Продается коммерческая земля, 20 сот.

Площадь участка20 сот.
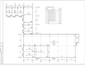
Продаётся земля под магазин в Нагаево в центре жилого массива на перекрестке 3-х улиц (Янтарная, Беловежская, Таёжная). 20 соток в собственности. Кадастровый номер: 02:55:040616:15347 Назначение земельного участка: Магазин. Разрешение на строительство есть, по проекту площадь - 780 м2. Количество парковочных мест: 25 машиномест. Получены и оплачены все технические условия: Электроснабжение - 150 кВт (КТПН установлена). Газоснабжение (на границе земельного участка). Водоснабжение (скважина). Водоотведение (шамбо). Выполненные работы: Произведены инженерно-геологические изыскания. Разработана и утверждена проектная документация. Произведена отсыпка земельного участка (по отметкам). Выполнена внутренняя система водоотведения.
lock

Войдите или зарегистрируйтесь
для просмотра информации

Просматривайте условия сделки и всю информацию об объекте
Сохраняйте фильтры в поиске и не вводите заново
Доступ к избранному с любого устройства
Неограниченное добавление в избранное
Позвоните автору
Вам ответят на все вопросы
Остались вопросы по объявлению?
Позвоните владельцу объявления и уточните необходимую информацию.
  • Инфраструктура
  • Похожие рядом
Помощь надёжных риелторов
Риелтор партнёр Циан поможет купить или продать любую недвижимость
Автор объявления
ID 9877360
  • 10 лет 8 месяцев на Циане
  • 18 000 000 ₽
    241 321 $
    205 092
    Цена за сотку
    900 000 ₽
    Налог
    УСН
    Автор объявления
    ID 9877360