Мы используем куки-файлы. Соглашение об использовании
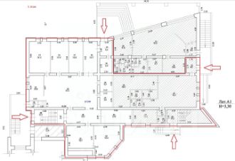
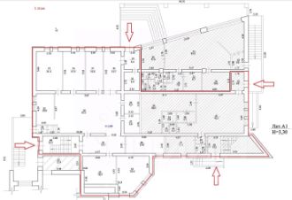
Площадь1 824,3 м²
Этаж1 из 3
ПомещениеСвободно
Отчёт о привлекательности объектаУзнайте, насколько помещение и район подходят для вашего бизнеса
Что входит в отчёт
  • Охват населения
  • Пешеходный трафик
  • Автомобильный трафик
  • Средний бюджет семьи по району
  • Арендные ставки рядом
  • Точки притяжения
  • Конкуренты в радиусе 1 км
  • Рекомендации по выбору места для бизнеса
Продается здание рядом с центром по улице Кирова 99/3. Для тихого офиса компании, всевозможных услуг. Практически отдельный пристрой к жилому дому. Общая площадь 1 824,3 кв.м. 1 этаж - 343,7 кв.м., 5 входных групп. 2 этаж - 559,6 кв.м., отдельный вход с улицы. 3 этаж и мансарда - 445,3 кв.м. Подвальный этаж - 475,7 кв.м. Есть кабинеты и открытые пространства. Высота потолков 3 м. 2005 года постройки. Все коммуникации, интернет. Большая парковка на прилегающей территории. Рядом выезд на проспект Салавата Юлаева, проспект Октября, улицы Комсомольскую, Айскую, Революционую. Без комиссии для покупателя. На вопросы отвечу по телефону. Код пользователя: 44800 Номер в базе: 8366715
lock

Войдите или зарегистрируйтесь
для просмотра информации

Просматривайте условия сделки и всю информацию об объекте
Сохраняйте фильтры в поиске и не вводите заново
Доступ к избранному с любого устройства
Неограниченное добавление в избранное
Позвоните автору
Вам ответят на все вопросы
Остались вопросы по объявлению?
Позвоните владельцу объявления и уточните необходимую информацию.
  • Инфраструктура
  • Похожие рядом
Помощь надёжных риелторов
Риелтор партнёр Циан поможет купить или продать любую недвижимость
137 000 000 ₽
1 820 913 $
1 550 179
Цена за метр
75 098 ₽
Налог
УСН
Агентство недвижимости
Документы проверены
На Циан
10 лет
Объектов в работе
более 4000