Мы используем куки-файлы. Соглашение об использовании
Площадь5 486 м²
Этажность3
Отчёт о привлекательности объектаУзнайте, насколько помещение и район подходят для вашего бизнеса
Что входит в отчёт
  • Охват населения
  • Пешеходный трафик
  • Автомобильный трафик
  • Средний бюджет семьи по району
  • Арендные ставки рядом
  • Точки притяжения
  • Конкуренты в радиусе 1 км
  • Рекомендации по выбору места для бизнеса
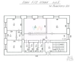
Продажа учебно-административного здания с общежитием площадью 5486 кв.м по ул. М.Рыльского, д. 9/1 Учебно-административное здание 5075 кв.м: - подвал -1104 м2, высота потолка - 2,4 м - 1 этаж - 1405 м2, высота потолка - 3,1 м - 2 этаж - 1148 м2, высота потолка - 3,1 м - мансардный этаж - 1418 м2, высота потолка - 3,1 м - отдельный вход в каждое крыло - зально - кабинетная планировка - чистовая отделка - охранная и пожарная сигнализация, видеонаблюдение - вентиляция, кондиционирование Общежитие 411 кв.м: - подвал - 76,5 кв.м, высота потолка - 2,2 м - 1 этаж - 111,8 кв.м, высота потолка - 3,0 м - 2 этаж - 111,0 кв.м, высота потолка - 3,0 м - мансардный этаж - 111,7 кв.м, высота потолка - 3,0 м - кабинетная планировка - коммуникации центральные, электричество 125 кВт - прилегающая территория огорожена, большая парковка - земельный участок 0,75 Га в собственности Здания расположены в центре Сипайлово, тихое место, хорошая транспортная доступность. Цена включает НДС 22%. Без комиссии для покупателя.
lock

Войдите или зарегистрируйтесь
для просмотра информации

Просматривайте условия сделки и всю информацию об объекте
Сохраняйте фильтры в поиске и не вводите заново
Доступ к избранному с любого устройства
Неограниченное добавление в избранное
Позвоните автору
Вам ответят на все вопросы
Остались вопросы по объявлению?
Позвоните владельцу объявления и уточните необходимую информацию.
  • Инфраструктура
  • Похожие рядом
Помощь надёжных риелторов
Риелтор партнёр Циан поможет купить или продать любую недвижимость
270 000 000 ₽
3 588 660 $
3 055 097
Цена за метр
49 217 ₽
Налог
НДС включен: 48 688 524 ₽
Агентство недвижимости
Документы проверены