Мы используем куки-файлы. Соглашение об использовании
Помещение свободного назначения, 1 324,8 м²
Аукцион

Продается помещение свободного назначения, 1 324,8 м²

Площадь1 324,8 м²
Отчёт о привлекательности объектаУзнайте, насколько помещение и район подходят для вашего бизнеса
Что входит в отчёт
  • Охват населения
  • Пешеходный трафик
  • Автомобильный трафик
  • Средний бюджет семьи по району
  • Арендные ставки рядом
  • Точки притяжения
  • Конкуренты в радиусе 1 км
  • Рекомендации по выбору места для бизнеса
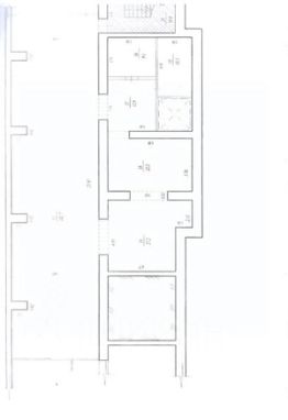
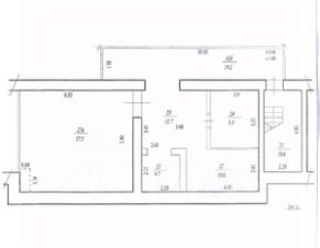
Данные получены с сайта ГИС Торги. Объект муниципального нежилого фонда - нежилые помещения первого этажа и подвала девятиэтажного жилого здания (кадастровые номера: 02:55:030182:168, 02:55:030182:167, 02:55:030182:608, 02:55:030182:607, 02:55:030182:560), расположенного по адресу: Республика Башкортостан, г. Уфа, Орджоникидзевский район, улица Мира, дом 7. Площадь объекта -1 324,8 кв.м. (в т. ч. нежилые помещения первого этажа и подвала площадью 223,8 кв.м.; нежилые помещения подвала площадью 139,1 кв.м.; нежилые помещения подвала площадью 224,3 кв.м.; нежилые помещения подвала площадью 633,6 кв.м.; нежилые помещения подвала площадью 104 кв.м.). Места общего пользования 22,5 кв.м. Этаж/этажность: 1, подвал / 9. Прочие характеристики: год постройки: 1975, материал стен: кирпич, высота помещений: 1 этаж 2,5м., 2,7м., подвал 2,26м., 2,5м., 2,68м.; износ 24%. Наличие коммуникаций: центральное отопление, электроснабжение, водоснабжение, канализация. Муниципальная собственность.
АукционОбъект реализуется посредством электронных торгов. Конечную информацию об оплате, дополнительных платежах и условия заключения договора смотрите в документах извещения к лоту, на сайте электронной торговой площадки.
lock

Войдите или зарегистрируйтесь
для просмотра информации

Просматривайте условия сделки и всю информацию об объекте
Сохраняйте фильтры в поиске и не вводите заново
Доступ к избранному с любого устройства
Неограниченное добавление в избранное
  • Инфраструктура
  • Похожие рядом
  • Общая площадь1 324,8 м²
Помощь надёжных риелторов
Риелтор партнёр Циан поможет купить или продать любую недвижимость
Управляющая компанияID 128914650
  • 1 год 2 месяца на Циане
  • 10995 объявлений
  • Начальная цена, аукцион
    3 298 752 ₽
    46 325 $
    39 964
    Цена за метр
    2 490 ₽
    Налог
    НДС включен: 594 856 ₽
    Управляющая компанияID 128914650