Мы используем куки-файлы. Соглашение об использовании
Проверено в Росреестре

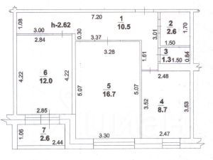
Продается 2-комн. квартира, 53,1 м²

Общая площадь53,1 м²
Жилая площадь28,7 м²
Площадь кухни8,7 м²
Этаж5 из 9
Год постройки2007
Предлагается к продаже светлая и очень тёплая двухкомнатная квартира в отличном состоянии. Мы переехали в другой город, поэтому квартирой практически не пользовались. Преимущества квартиры: Качественная постройка. Квартира очень тёплая даже в самые холодные зимы, не угловая. Окна - стеклопакеты. Спокойная атмосфера: Тихие и спокойные соседи. Хорошее состояние - Чистовая отделка. Выгодное расположение: Во дворе находится школа, что особенно удобно для семей с детьми. В нескольких минутах ходьбы — остановка общественного транспорта. Рядом современный торговый центр с магазинами, аптекой и другими необходимыми услугами. Квартира идеально подходит для комфортной жизни. Рассмотрю разумный торг за наличный расчёт. Один взрослый собственник. Никто не прописан. Без обременений. Кухня остаётся. Развитая инфраструктура: рядом магазин, школа, детский сад. Хорошая транспортная доступность, у дома автобусная остановка.
Позвоните автору
Вам ответят на все вопросы

О квартире

Тип жилья

Вторичка

Общая площадь

53,1 м²

Жилая площадь

28,7 м²

Площадь кухни

8,7 м²

Высота потолков

2,6 м

Санузел

1 раздельный

Балкон/лоджия

1 лоджия

Ремонт

Косметический

О доме

Год постройки

2007

Количество лифтов

1 пассажирский

Тип дома

Монолитный

Тип перекрытий

Железобетонные

Подъезды

3

О подъезде

Есть мусоропровод

Парковка

Наземная

Отопление

Индивидуальный тепловой пункт

Аварийность

Нет

Газоснабжение

Центральное

Спросите умного помощника
Получите экспертное мнение о жилье
Информация из Росреестра
Обременения
Нет
Площадь
51,8 м²
Этаж
5
Собственников
1
Кадастровый номер
02:56:050106:***

Расположение

Ипотечный калькулятор
  • Базовая
  • Семейная
  • ИТ-ипотека
  • 20%
  • 30%
  • 40%
  • 50%
лет
  • 10 лет
  • 20 лет
  • 30 лет
Загружаем предложения от застройщика и банков
Помощь риелтора
Проверенный риелтор поможет купить или продать квартиру
СобственникID 101081292
    4 780 000 ₽
    Цена за метр
    90 019 ₽/м²
    Условия сделки
    свободная продажа
    Ипотека
    возможна
    СобственникID 101081292