Мы используем куки-файлы. Соглашение об использовании

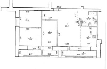
Продается 3-комн. квартира, 89,3 м²

Общая площадь89,3 м²
Площадь кухни9,2 м²
Этаж9 из 9
Год постройки1986
Продает собственник. Риелторам не звонить! Продается евро 4х комнатная квартира, с мебелью и готовым дизайнерским ремонтом. Верхний этаж 9-этажного кирпичного дома, квартира угловая видовая — Общая площадь 89,3 кв.м (по выписке), около 100 по факту. — Три спальни + большая объединенная кухня и гостиная — Просторный совмещенный санузел Комфорт и удобство — На этаже квартира отделена от общей прилифтовой зоны тамбуром, где установлен шкаф для хранения — Есть собственная кладовка на техническом этаже оборудованная полками, что позволит хранить сезонные вещи — Лоджии утеплены и совмещены с квартирой (перепланировка узаконена), что дает больше пространства Дополнительное преимущество: — Собственное парковочное место на парковке (по договоренности с почтой) — Кирпичный дом, слышимость соседей нулевая
Позвоните автору
Вам ответят на все вопросы

О квартире

Тип жилья

Вторичка

Общая площадь

89,3 м²

Площадь кухни

9,2 м²

Высота потолков

2,5 м

Санузел

1 совмещенный

Ремонт

Дизайнерский

О доме

Год постройки

1986

Количество лифтов

1 пассажирский

Тип дома

Кирпичный

Тип перекрытий

Железобетонные

Подъезды

6

Отопление

Центральное

Аварийность

Нет

Газоснабжение

Центральное

Спросите умного помощника
Получите экспертное мнение о жилье

Расположение

Ипотечный калькулятор
  • Базовая
  • Семейная
  • ИТ-ипотека
  • 20%
  • 30%
  • 40%
  • 50%
лет
  • 10 лет
  • 20 лет
  • 30 лет
Загружаем предложения от застройщика и банков
Помощь риелтора
Проверенный риелтор поможет купить или продать квартиру
СобственникID 95307962
    12 500 000 ₽
    Цена за метр
    139 978 ₽/м²
    Ипотека
    возможна
    СобственникID 95307962