Мы используем куки-файлы. Соглашение об использовании

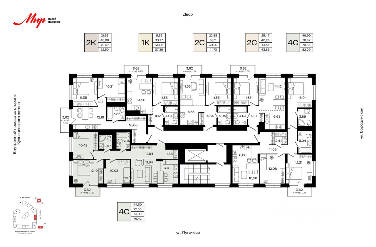
Продается 4-комн. квартира, 73,89 м²

Общая площадь73,89 м²
Этаж6 из 13
Год сдачи2028
ДомНе сдан
ОтделкаНет информации
4-к квартира в МИР; По адресу: Литер 1, Секция 2. 6-й этаж 13- этажного жилого дома Общая площадь 73.89кв.м.; Жилая площадь 0.00 кв. м. от ГК "Первый Трест". Квартира с свободной планировкой, позволяющей реализовать любые дизайнерские решения: - Стены выровнены и оштукатурены, готовые под финишную отделку по вашему вкусу. - Пол: выполнена стяжка, обеспечивающая ровное основание для любых напольных покрытий. - Электрика: разводка выполнена до щитка, что обеспечивает безопасность и удобство при дальнейшем монтаже. - Отопление: установлены радиаторы и выполнена полная разводка системы отопления. - Водоснабжение: выведены коммуникации под воду, готовые для установки сантехнического оборудования. Хотите узнать подробнее о планировке или подобрать по вашим параметрам? Свяжитесь с нами! Главная ценность здесь - это качество повседневной жизни. Мы понимаем комфорт не как набор роскошных опций, а как продуманную среду, где всё работает на благо человека: от надёжных инженерных систем и социальной инфраструктуры до благоустроенной территории с видом на водные просторы. "Мир" - это возвращение к идее цельного пространства, созданного исходя из потребностей современного человека. Концепция комплекса берёт за основу успешный советский опыт создания "городов в городе" - микрорайонов с развитой социальной и инженерной инфраструктурой. Это МИР, в котором есть всё. А архитектурный стиль комплекса символизирует надёжность, основательность и верность принципам разумного подхода к жизни. Расположение Расположенный в Кузнецовском затоне на берегу реки, комплекс становится новым центром притяжения. Название "Мир" выбрано не случайно: оно отражает стремление создать гармоничное замкнутое пространство с современной инфраструктурой, которая закрывает все потребности жителя мегаполиса. Это ваш личный мир, где суета города остаётся за пределами, уступая место спокойствию и размеренному ритму жизни. Однако, если понадобится - вы легко и быстро попадёте в исторический центр Уфы и любую другую точку города. - 8 минут до гипермаркета "Лента" - 10 минут до Монумента Дружбы - 11 минут до ТРЦ "Иремель" - 15 минут до Гостиного Двора Арифметика проекта - 2028 г. 4 кв.срок завершения строительства первой очереди - 3 квартала - 12 видовых башен - 1300 мест в школе - 500 м.набережная у дома - от 7 до 31 этажность Двор Место, где детский смех парит высоко Над деревьями. Мы продумали каждую деталь: здесь яркие игровые комплексы для детей постарше соседствуют с уединённым и безопасным "гнёздышком" для дошкольников, надёжно защищённым своим ограждением.Пока дети покоряют игровые вселенные, взрослые могут перевести дух в зоне отдыха, заняться спортом или, не теряя из виду своих чад, насладиться долгожданным общением. Вестибюли - Собственная охрана и контрольно-пропускной пункт - Кофейня в холле - Посылочные для хранения доставленных товаров - Санузел - Интеллектуальная подсветк

О квартире

Тип жилья

Новостройка

Общая площадь

73,89 м²

Отделка

Нет информации

О доме

Тип дома

Монолитно-кирпичный

Понравилась квартира — узнайте о ней больше

Застройщик ответит на все вопросы

Похоже на то, что вы ищете?

Акции в ЖК «Мир»

Узнайте про персональные условия и дополнительные скидки при покупке квартиры у застройщика
Ипотечный калькулятор
  • Базовая
  • Семейная
  • ИТ-ипотека
  • 20%
  • 30%
  • 40%
  • 50%
лет
  • 10 лет
  • 20 лет
  • 30 лет
Загружаем предложения от застройщика и банков

Расположение

Ещё квартиры в жилом комплексе

120 квартир в продаже · Сдача в 4 кв. 2028
Агентство недвижимости
Первый Трест
  • 8 лет 4 месяца на Циане
  • 9 820 500 ₽
    Цена за метр
    132 907 ₽/м²
    Условия сделки
    свободная продажа
    Агентство недвижимости
    Первый Трест