Мы используем куки-файлы. Соглашение об использовании
Только на Циан
Общая площадь100 м²
Участок2 сот.
Материал домаКирпичный
Этажей в доме2
Год постройки2026
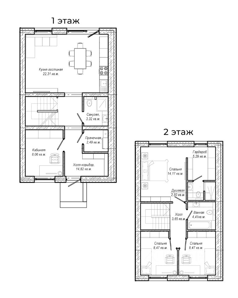
Новый загородный квартал комфорт-класса от строительной компании FREEDOM В продаже двухэтажная квартира-таунхаус, площадью 100 кв.м., с участком земли 2 сотки в закрытом загородном квартале нового формата DУО. Это блокированные дома с двухэтажными квартирами от 6 до 9 блоков, которые сочетают в себе преимущества жилого комплекса и приватность частного дома. Всего за 25 минут езды от города Уфы вы попадаете в место, в котором гармонично сочетаются городские удобства и близость к природе! ПЛАНИРОВКА: 1 этаж: - холл-коридор, 14,82 кв.м. - прачечная, 2,49 кв.м. - кабинет, 8,06 кв.м. - санузел, 3,32 кв.м. - кухня-гостиная, 22,31 кв.м. 2 этаж: - холл, 3,65 кв.м. - мастер-спальня, 14,17 кв.м. с гардеробной 5,29 кв.м. и ванной, 2,80 кв.м. - спальня, 8,47 кв.м. - спальня, 8,47 кв.м. - ванная комната, 4,41 кв.м. Цена указана за упрощённую предчистовую отделку. Возможно доведение до чистовой в кратчайшие сроки, цены узнавайте . В стоимость уже входит участок, ограждённый забором, парковочное место, бетонные дорожки, отмостка. Дом под ключ, все коммуникации внутри: электричество, отопление, вода, канализация. В посёлке проведён газ, есть централизованное водоснабжение. Приобретая квартиру в квартале DУО, вы получаете: - Отдельный вход к своему дому - Два парковочных места на семью - Свой участок - Свою сервисную компанию - Эко-бульвар для прогулок - Пространство для досуга: детские и спортивные площадки, зона воркаут, амфитеатр - Закрытую территорию - Асфальтированные дороги и освещённые улицы - Пешеходные тротуары из брусчатки Простор, собственный участок, сервис и приватность всё это без необходимости уезжать далеко от города. Новый квартал DУО создан для тех, кто перерос тесные квартиры и хочет большего для семьи, для себя, для жизни. Звоните и записывайтесь на встречу с менеджером, чтобы узнать больше! Мы работаем без выходных!
Позвоните автору
Вам ответят на все вопросы

О доме

Площадь

100 м²

Материал дома

Кирпичный

Состояние дома

Нужен ремонт

Количество этажей

2

Количество спален

4

Год постройки

2026

Об участке

Площадь

2 сот.

Категория земель

Земли населённых пунктов

Статус участка

Индивидуальное жилищное строительство

Коммуникации и удобства

Санузел

3 в доме

Канализация

Септик

Водоснабжение

Центральное

Отопление

Электрическое

Электричество

Есть

Газ

Магистральный по границе

Спросите умного помощника
Получите экспертное мнение о жилье

Расположение

Подпишитесь на объявления в этой локации
Мы сообщим, как только поблизости появится что‑нибудь новенькое
Ипотечный калькулятор
  • Базовая
  • Семейная
  • ИТ-ипотека
  • 20%
  • 30%
  • 40%
  • 50%
лет
  • 10 лет
  • 20 лет
  • 30 лет
Загружаем предложения от застройщика и банков
Управляющая компанияFREEDOM
Суперагент
  • 8 лет 3 месяца на Циане
  • 12 объявлений
  • Хотите продать недвижимость?Разместите объявление на ЦианРазместить
    8 615 000 ₽
    Цена за метр
    86 150 ₽/м²
    Условия сделки
    свободная продажа
    Ипотека
    возможна
    Управляющая компанияFREEDOM
    Суперагент