Мы используем куки-файлы. Соглашение об использовании
Только на Циан
Общая площадь100,7 м²
Участок8 сот.
Материал домаКирпичный
Этажей в доме1
Год постройки2020
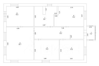
Таптыково. Нижегородка. Современный, с отличной, продуманной планировкой дом площадью 100,7 кв.м. + 24 кв.м. теплая терраса + 67,6кв.м. банный комплекс, хоз. блок, погреб с бомбоубежищем, все под одной крышей, на улицу можно не выходить, итого общая площадь объекта около 192,3 кв.м. на земельном участке 8 соток по адресу: Республика Башкортостан, район Уфимский, сельсовет Таптыковский, село Таптыково, переулок Рябиновый, дом 33. Дом с хорошим, качественным ремонтом, отопление газовое, вода - скважина 23 м., два шамбо, одно шамбо из дома с переливом, второе для банного комплекса. Территория огорожена забором, по улице асфальтированная дорога, парковочное место на две машины и вход в дом от калиток - под навесом. Территория перед домом, во дворе, а так же дорожка и отмостка вокруг всего дома уложена искусственным камнем! Так же есть теплица! На крыше дома снегозадержатели, так же везде установлена водосточная система с водостоком. Автоматические откатные ворота сделаны так, что весь механизм закрыт мет. корпусом, что дает в снежную погоду не чистить территорию рядом с воротами, т.к. снег не скапливается и нет попадания воды на механизм. Сам жилой дом с дизайнерским ремонтом и мебелью. Пристрой : терраса, банный комплекс в чистовой отделке. Все коммуникации выведены, все разведено. Стены - оштукатурены, отшпаклеваны и отгрунтованы. Осталось доделать чистовую отделку под свой вкус! Банный комплекс состоит из: сан. узла, кухни-гостинной, помывочной, парной зоны, хоз. блока. Очень удобно для приема гостей, предусмотрено абсолютно все, начиная от сан. узла с кухней-гостинной и до парной! С теплой террасы есть выход в погреб с бомбоубежищем, он располагается под всей территорией пристроя. Дом расположен в хорошей локации, в шаговой доступности: остановка общественного транспорта, магазины, аптеки и т.д. В доме продуманно ВСЕ до мелочей!!! Дорога - асфальтированная, зимой всегда чистят! Соседи круглогодично проживают! Все описать - не опишешь! Нужно смотреть! Варианты покупки: ипотека, наличный расчет! Юридическое сопровождение - бесплатно.
Позвоните автору
Вам ответят на все вопросы

О доме

Площадь

100,7 м²

Материал дома

Кирпичный

Состояние дома

Можно жить

Количество этажей

1

Количество спален

5

Год постройки

2020

Об участке

Площадь

8 сот.

Категория земель

Земли населённых пунктов

Статус участка

Индивидуальное жилищное строительство

Коммуникации и удобства

Санузел

1 в доме

Канализация

Выгребная яма

Водоснабжение

Колодец

Отопление

Центральное газовое

Электричество

Есть

Газ

Магистральный в доме или на участке

Дополнительно

Погреб Терраса Баня

Спросите умного помощника
Получите экспертное мнение о жилье

Расположение

Подпишитесь на объявления в этой локации
Мы сообщим, как только поблизости появится что‑нибудь новенькое
Ипотечный калькулятор
  • Базовая
  • Семейная
  • ИТ-ипотека
  • 20%
  • 30%
  • 40%
  • 50%
лет
  • 10 лет
  • 20 лет
  • 30 лет
Загружаем предложения от застройщика и банков
Хотите продать недвижимость?Разместите объявление на ЦианРазместить
14 000 000 ₽
Цена за метр
139 027 ₽/м²
Условия сделки
свободная продажа
Ипотека
возможна
Агентство недвижимости
Документы проверены
На Циан
10 лет
Объектов в работе
56