61 625 ₽/м²
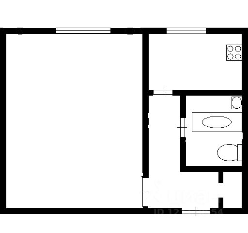
За объект уже внесли аванс Код объекта: 2056559. Срочно продаётся уютная однокомнатная квартира в кирпичном доме по адресу: Республика Башкортостан, Стерлитамак, улица Худайбердина, 101Б. Квартира расположена на третьем этаже пятиэтажного дома. Общая площадь — 35,7 кв. м. В квартире сделан косметический ремонт, что позволит новым владельцам сразу заселиться или при желании обновить интерьер по своему вкусу. Квартира не угловая, установлены качественные стеклопакеты, окна выходят на улицу. Совмещённый санузел. Парковка во дворе дома — наземная. Это идеальный выбор для тех, кто ищет комфортное жильё в районе с развитой инфраструктурой. Звоните нам прямо сейчас, чтобы узнать больше и записаться на просмотр. ТОРГ при осмотре. Мы гарантируем безопасную сделку и юридическую поддержку нашим Клиентам. Поможем одобрить ипотеку с сниженной ставкой. Купить 1-комнатную квартиру до 2,5 млн. рублей в Стерлитамаке.



















































































