Первичная продажа



сдача ГК: 4 кв. 2028 года
4 783 800 ₽
203 739 ₽/м²
1-к квартира в МИР;
По адресу:
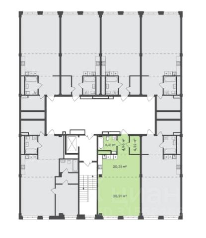
Литер 1, Секция В. 2-й этаж 31- этажного жилого дома
Общая площадь 23.48кв.м.;
Жилая площадь 8.99 кв. м. от ГК "Первый Трест".
Срок окончания строительства: 4 квартал 2028 года.
Квартира с свободной планировкой, позволяющей реализовать любые дизайнерские решения:
- Стены выровнены и оштукатурены, готовые под финишную отделку по вашему вкусу.
- Пол: выполнена стяжка, обеспечивающая ровное основание для любых напольных покрытий.
- Электрика: разводка выполнена до щитка, что обеспечивает безопасность и удобство при дальнейшем монтаже.
- Отопление: установлены радиаторы и выполнена полная разводка системы отопления.
- Водоснабжение: выведены коммуникации под воду, готовые для установки сантехнического оборудования.
Хотите узнать подробнее о планировке или подобрать по вашим параметрам? Свяжитесь с нами!
Главная ценность здесь - это качество повседневной жизни. Мы понимаем комфорт не как набор роскошных опций, а как продуманную среду, где всё работает на благо человека: от надёжных инженерных систем и социальной инфраструктуры до благоустроенной территории с видом на водные просторы.
"Мир" - это возвращение к идее цельного пространства, созданного исходя из потребностей современного человека.
Концепция комплекса берёт за основу успешный советский опыт создания "городов в городе" - микрорайонов с развитой социальной и инженерной инфраструктурой. Это МИР, в котором есть всё. А архитектурный стиль комплекса символизирует надёжность, основательность и верность принципам разумного подхода к жизни.
Расположение
Расположенный в Кузнецовском затоне на берегу реки, комплекс становится новым центром притяжения. Название "Мир" выбрано не случайно: оно отражает стремление создать гармоничное замкнутое пространство с современной инфраструктурой, которая закрывает все потребности жителя мегаполиса. Это ваш личный мир, где суета города остаётся за пределами, уступая место спокойствию и размеренному ритму жизни. Однако, если понадобится - вы легко и быстро попадёте в исторический центр Уфы и любую другую точку города.
- 8 минут до гипермаркета "Лента"
- 10 минут до Монумента Дружбы
- 11 минут до ТРЦ "Иремель"
- 15 минут до Гостиного Двора
Арифметика проекта
- срок завершения строительства первой очереди 4 кв. 2028 г.
- 3 квартала
- 12 видовых башен
- 1300 мест в школе
- 500 м.набережная у дома
- от 7 до 31 этажность
Двор
Место, где детский смех парит высоко Над деревьями. Мы продумали каждую деталь: здесь яркие игровые комплексы для детей постарше соседствуют с уединённым и безопасным "гнёздышком" для дошкольников, надёжно защищённым своим ограждением.Пока дети покоряют игровые вселенные, взрослые могут перевести дух в зоне отдыха, заняться спортом или, не теряя из виду своих чад, насладиться долгожданным общением.
Вестибюли
- Собственная охрана и контрольно-пропускной пункт
- Кофейня в холле
- Посылочные для хранения доста 1-комнатная квартира в районе Кировский в городе Уфа.














































































































