66 667 ₽/м²
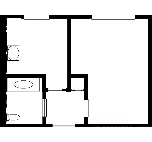
За объект уже внесли аванс Код объекта: 2006554. Продается просторная 1 комнатная квартира площадью 41,4 кв.м. Квартира теплая, с косметическим ремонтом, на 4 этаже 5ти этажного дома. Новым собственникам остается частично мебель, кухонный гарнитур, шкаф-купе, стол, стулья. Двор оборудован системой видеонаблюдения, имеются новая спортивная и детская площадки. Рядом расположены школы 10 и 2, детские сады 37 и 64, оздоровительный комплекс Березка, колледжы, техникумы. Чистая продажа, квартира без обременений, один собственник более пяти лет.







































































