Первичная продажа



Рассрочка от застройщика
С отделкой
Онлайн-бронирование
сдача ГК: 4 кв. 2026 года
13 888 420 ₽
182 000 ₽/м²
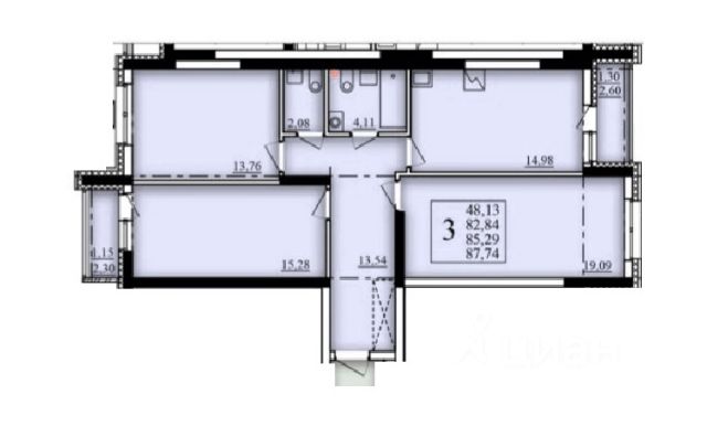
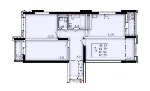
3 к. квартира в новом строящемся двадцатипятиэтажном монолитно-кирпичном доме комплекса высотных домов Грани в квартале, ограниченном улицами Гафури, Чернышевского, Султанова. Тихий район в историческом центре Уфы. Полностью развитая инфраструктура района: школы, детские сады, прогулочные зоны, спортивные учреждения, магазины, аптеки находятся в шаговой доступности. Гостиный двор и площадь им. Салавата Юлаева в 15-ти минутах спокойного шага от комплекса. В доме и квартале предусмотрены: консьерж сервис; закрытый двор; система видеонаблюдения за периметром; благоустроенная территория; собственная управляющая компания; детская и спортивная площадки. СДАЧА ДОМА 4 квартал 2026 г. Оформление по Договору долевого участия, регистрация в Росреестре. Возможна рассрочка, ипотека, трейд ин. Бесплатное бронирование квартиры на 14 дней. Продажи осуществляются с использованием эскроу-счетов. ВОЗМОЖНО ПРИОБРЕТЕНИЕ БЕЗ ПЕРВОНАЧАЛЬНОГО ВЗНОСА. Отделка - предчистовая (White BOX), включает в себя: гипсовая штукатурка стен; полусухая стяжка пола; электрика заведена до щитка; центральное отопление с лучевой разводкой до радиаторов; стояки ХВС, ГВС, электроэнергии и теплоэнергии расположены в подъезде. Актуальную стоимость квартиры следует уточнять в офисе продаж по указанному в объявлении номеру телефона. Купить 3-комнатную квартиру в новостройке с отделкой в районе Ленинский в городе Уфа.







































