


207 900 ₽/м²
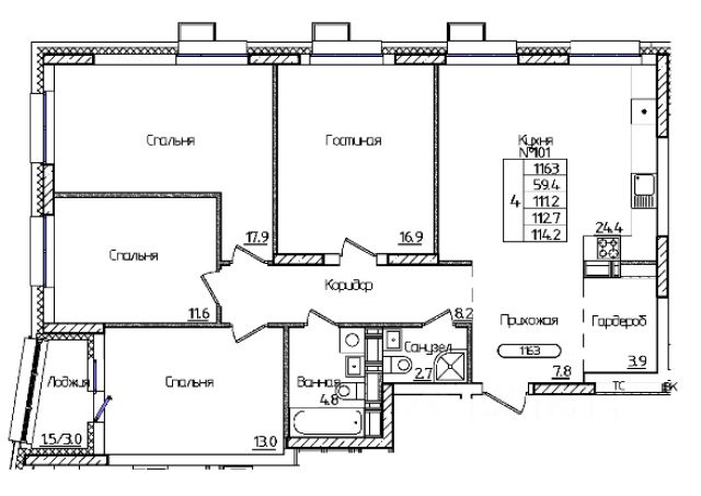
4-к квартира в ATLANTIS; По адресу: ул. Маршала Жукова ЖК Атлантис, Секция 1. 9-й этаж 32- этажного жилого дома Общая площадь 80.00кв.м.; Жилая площадь 33.40 кв. м. от ГК "Первый Трест". Срок окончания строительства: 4 квартал 2027 года. Квартира с свободной планировкой, позволяющей реализовать любые дизайнерские решения: - Стены выровнены и оштукатурены, готовые под финишную отделку по вашему вкусу. - Пол: выполнена стяжка, обеспечивающая ровное основание для любых напольных покрытий. - Электрика: разводка выполнена до щитка, что обеспечивает безопасность и удобство при дальнейшем монтаже. - Отопление: установлены радиаторы и выполнена полная разводка системы отопления. - Водоснабжение: выведены коммуникации под воду, готовые для установки сантехнического оборудования. Жилой комплекс ATLANTIS расположен в непосредственной близости от живописного озера Кашкадан. Из окон открываются уникальные виды на парк, водную гладь и панораму города. Прогулки по набережной, занятия спортом на открытом воздухе и множество других активностей станут приятным дополнением удобной локации. Многоуровневое благоустройство Первый ярус - открытая территория, двор-сад с фонтаном; окружённый арт-объектами и элементами ландшафтного дизайна. Место, где благоустройство жилого комплекса бесшовно соединяется с природой парка Кашкадан. Второй - частное пространство для отдыха жильцов с концептуальными детскими и спортивными зонами. Наслаждайтесь видами на озеро со смотровой площадки и прогулками среди зелёных композиций. Архитектура Внешний вид жилого комплекса вдохновлён легендой, но при этом является современным и инновационным. Шесть видовых башен и секции переменной этажности обеспечивают оптимальный приток естественного света и открывают великолепный вид на озеро и парк. Внутренние дворы каждой очереди соединены мостом-кольцом, связывающим всю архитектурную композицию воедино. Выбирайте комфортную высоту и площадь для жизни Множество планировок, соответствующих стандартам современного бизнес-класса: - Квартиры с мастер-спальнями и гостевыми санузлами. - Крупноформатные окна с роскошными видами. - Просторные прихожие и кухни-гостиные. - Террасы с видом на озеро и парк. - Удобные гардеробные. - Двухуровневые квартиры. Инфраструктура в пешей доступности Продукты - 15 Здоровье - 19 Кафе и рестораны - 8 Детские сады - 6 Образование - 10 Спорт - 11 Шоппинг - 17 Красота и уход - 19 Культура и досуг - 12 Мы предлагаем различные варианты покупки квартир в нашем жилом комплексе: - Оплата наличными - Рассрочка до 24 мес. - Семейная ипотека от 2,6% - IT ипотека - Ипотека для всех от 13,9% - Ипотека от 20 ведущих банков страны: наши специалисты помогут подобрать оптимальную программу кредитования. - Использование материнского капитала - Программа Trade-in: Бесплатно поможем продать вашу старую квартиру и подобрать новую в нашем комплексе! Свяжитесь с нами, чтобы узнать подробност Продается 4-комнатная квартира в Уфе.



















































































































