


251 800 ₽/м²
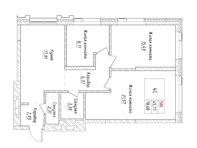
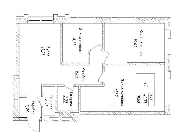
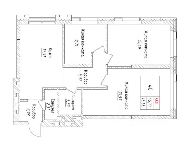
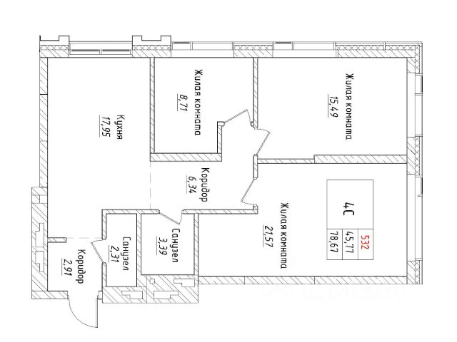
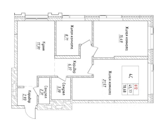
5-к квартира в 8 НЕБО; По адресу: ул. Лесотехникума Литер 1, Секция 1. 32-й этаж 32- этажного жилого дома Общая площадь 97.13кв.м.; Жилая площадь 59.86 кв. м. от ГК "Первый Трест". Срок окончания строительства: 3 квартал 2027 года. Квартира с свободной планировкой, позволяющей реализовать любые дизайнерские решения: - Стены выровнены и оштукатурены, готовые под финишную отделку по вашему вкусу. - Пол: выполнена стяжка, обеспечивающая ровное основание для любых напольных покрытий. - Электрика: разводка выполнена до щитка, что обеспечивает безопасность и удобство при дальнейшем монтаже. - Отопление: установлены радиаторы и выполнена полная разводка системы отопления. - Водоснабжение: выведены коммуникации под воду, готовые для установки сантехнического оборудования. ЖК 8 Небо - это восемь домов в самом современном районе столицы. Вы попадаете в уютное, но при этом динамичное пространство, открытое солнечным лучам. Здесь вы найдете для счастья всё, вне зависимости от того, что вкладываете в это понятие. - Счастье, когда всё рядом. Открытая прогулочная улица на территории комплекса, крупнейший торговый центр в 10 минутах ходьбы, прямой доступ к ключевым транспортным магистралям города - Счастье в эстетике. 8 разновысотных зданий, созданных при участии шведских архитекторов. - Счастье в красоте, функциональности и безопасности. Просторные дизайнерские холлы с уникальным дизайном для - Счастье в благоустроенной территории. Многоярусный внутренний двор с разнообразными зонами озеленения и общественными пространствами. - Счастье жить с единомышленниками. Соседский центр - уютное пространство для отдыха и площадка для воплощения идей, доступ к которой будет у всех жителей комплекса. Архитектура ЖК 8 Небо создан при участии шведских архитекторов, которые привнесли в проект элементы скандинавской культуры. Разновысотные здания выполнены из экологически-безопасных материалов. Базовая отделка фасадов: декоративная плитка с имитацией кирпича, фиброцементные панели и витражи из алюминиевого сплава. Всё это соответствует скандинавскому стилю, сочетая минимализм и эстетику. Паркинг Жилой комплекс оборудован просторным и безопасным подземным паркингом с системой бесконтактного доступа по номеру автомобиля. Изнутри же попасть в него можно просто спустившись на лифте с любого этажа. Благоустройство Открытый квартал для прогулок наполнит район необходимыми элементами приятной и комфортной жизни: эстетичные арт-объекты, облагороженная зона отдыха, магазины, рестораны, студии развития и творчества, салоны красоты. А закрытая территория, доступная только владельцам квартир жилого комплекса и их гостям, обеспечит уединение и безопасность. Весело и с пользой провести время теперь можно не выходя за пределы своего жилого комплекса. Инфраструктура в радиусе километра Школы - Собственная школа на территории комплекса - МАОУ Школа 88 - Школа 97 им. Г.А. Ахмерова - Лицей 6 им. Сафина Н.Д. - Лицей 42 - Продам 5-комнатную квартиру от застройщика в республике Башкортостан.




































