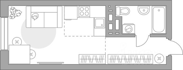
164 820 ₽/м²
Продаётся студия в строящемся доме (корпус 1), срок сдачи: III-кв. 2026, общей площадью 27.6 кв.м., на 3 этаже. Жилой комплекс "Лесная симфония" - преимущества современного комфорта в одном из самых живописных районов Уфы. Проект расположен в юго-восточной части Уфы, в престижном районе "Зеленая роща". Рядом находится ВДНХ Экспо УФА. Близость к центру города, отличная транспортная доступность, развитая инфраструктура, продуманный архитектурный проект, качественное благоустройство территории - все это делает ЖК "Лесная симфония" идеальным выбором для комфортной жизни. В проекте предусмотрены все опции, формирующие высокое качество жизни. Удобные функциональные планировки рассчитаны на разные категории покупателей, территория будет благоустроена и озеленена в соответствии с лучшими мировыми практиками, в дизайнерском лобби расположатся колясочные, места для велосипедов и кладовые, для автомобилей предусмотрен подземный паркинг. Шопинг, развлечения и услуги - в шаговой доступности. Жилой комплекс "Лесная симфония" великолепно подходит для семейного проживания. Чистый воздух и здоровый микроклимат, прогулки в благоустроенных парках, катание на горных лыжах, социальная инфраструктура в шаговой доступности, комфортные и функциональные планировки, безопасный двор с детскими площадками. Проект состоит из 6 секций переменной этажности, от 17 до 23 этажей. Секции объединены стилобатом, на котором расположится благоустроенный двор с ландшафтным дизайном, детскими и спортивными площадками.







































