54 464 ₽/м²
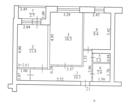
ХОТИТЕ стать собственником 2-комнатной квартиры, вот она в хорошем доме с отличной планировкой !!! Все комнаты раздельные,правильной формы,сан узел раздельный..Большая вместительная кухня, мечта хозяйки , Уютная спальня. В квартире широкий коридор. Лоджия застеклена Двор тихий и спокойный,все соседи адекватные. В близи дома школы 21,4 детские сады 17,18, 56 и множество продовольственных магазинов. Рассмотрим Все виды расчёта. Материнский капитал. Помощь в одобрении и оформлении ипотеки.







































