Первичная продажа



сдача ГК: 4 кв. 2029 года
15 458 500 ₽
215 000 ₽/м²
• 2-к квартира, 71.9 м² в жилом комплексе культура "Культура" — квартал в историческом центре с собственным парком
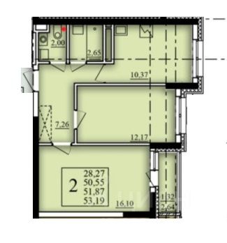
• Общая площадь: 71.9м²
• Количество комнат: 2-к
• Этаж: 7-й
• Высота потолков: 2,7 м
• Отделка: Черновая
Культура полноценный городской квартал в историческом центре Уфы с уникальными характеристиками для данной локации. А формат проекта mix-use позволит здесь комфортно жить, работать и отдыхать.
— Парк Якутова в пешей доступности
— Рядом лучшие школы города, детские сады и лицеи. Лицей 1 в 100 метрах
— Театры, рестораны и деловая инфраструктура
— Удобные выезды на ключевые улицы города
Квартал спроектирован по принципу:
снаружи — город, внутри — приватная среда для жителей. Закрытый двор без посторонних и сквозные входные группы (вход с улицы и выход во двор). Это полноценный проект комплексного развития территории, а не точечная застройка.
В Культуре вся среда выстроена как единая система: от двора до сервисов и инженерии. Мы спроектировали продуманную модель жизни — с приватностью, инфраструктурой и сценариями на каждый день.
Внутри квартала полноценный зелёный парк, доступный только жителям. Здесь предусмотрены:
— тихие зоны для отдыха и уединения
— детские площадки, разделённые по возрастам
— спортивные пространства и воркаут
— оранжерея и зоны для работы на свежем воздухе
— арт-объекты и прогулочные маршруты
Формат "город внутри квартала" (mix-use)
Проект объединяет жилую, деловую и коммерческую функции. Первый этаж и часть квартала формируют полноценную инфраструктуру:
— кафе и рестораны
— магазины и сервисы
— офисный кластер
— детский центр
Продуманные общественные пространства
Места общего пользования работают как продолжение квартиры, ваши дополнительные квадратные метры которые уже оборудованы:
— дизайнерские входные группы
— гранд-лобби с ресепшн
— фитнес-зал для жителей
— соседский центр с коворкингом и зонами отдыха
— колясочные и велопомещения
— сервисные и хозяйственные пространства
Комфорт и безопасность заложены на уровне проектирования:
— Подземный и многоуровневый паркинг дают в совокупности обеспеченность парковочными местами в комплексе — 2/3.
— контроль доступа и приватная территория
— система видеонаблюдения
— вызов охраны в приложении
— энергоэффективные решения, вентиляция и отопление
— лифты с доступом в паркинг
Условия покупки:
Семейная ипотека
Траншевая ипотека
Комбо-ипотека
Ипотека по сниженной ставке на весь срок
Напишите или позвоните — подберём планировку под ваши задачи и покажем доступные варианты.












































































































