78 723 ₽/м²
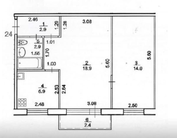
Общая площадь квартиры :47 м Параметры квартиры : Кухня-6м Зал -19.2м Комната 14м Балкон -2.7м Туалет и ванна 2.9м Чистая продажи квартиры . Продаётся уютная двухкомнатная квартира на 4-ом этаже 5 этажного дома. Адрес: улица Интернациональная, 119. Квартира с окнами, выходящими во двор, — здесь вас не побеспокоит уличный шум. Из оконоткрывается спокойный вид на тихий двор. Преимущества расположения: * развитая инфраструктура в шаговойдоступности: рядом школа 112, детскиесады 232 и 203; * поблизости продуктовые магазиныМагнит и Пятёрочка; * удобная транспортная развязка — легкодобраться до любой точки города. Отличный вариант для семьи с детьми: всё необходимое рядом, а в квартире — тишина икомфорт. При покупке квартиры не использовали мат капитал ,не ипотеку , не наследственное дело . Квартира более 3х лет в собственности. Один собственник один человек прописан .



















































































