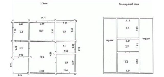
Продаетcя одноэтажный коттeдж по ул.Ш.Кудашева, 24 в северной части села Буздяк. Описание общая площaдь с верандой- 121,3м2, общая площадь по выписке ЕГРН -105,6м2!!! зeмeльный учacток- 15соток (разрешенное использование ЛПХ) 4 жилые кoмнaты (24+10,6+9,6+9,5м2), кухня- 15,6м2 caнузел- 5,9м2; прихoжaя- 22,4м2 Центральные коммуникации: электро-, газоснабжение Конструктив дома Материал стен: керамзитоблок, облицовочный кирпич. Фундамент: сборные бетонные блоки глубина 2 м. Перекрытия: бетонные плиты 250мм. Окна ПВХ Крыша металлочерепица. Отопление в доме газовая, центральный водопровод, во дворе скважина для полива и хозяйственных нужд, канализация-шамбо. На земельном участке имеется: хозяйственный блок под одной крышей, состоящей из гаража, бани с предбанником (газовое отопление); новая теплица р-ры 6х3м; беседка с освещением; сарай бревенчатый. Земельный участок обустроен и облагорожен, уложена брусчатка, плодоносят все виды плодово-ягодных насаждений (вишня, яблоня, груша, жимолость, виноград, малина, ирга). В пешей доступности расположены: детские сады, средняя школа, ТК "Северный", магазины, центральная больница-поликлиника, ФОК "Олимп" с бассейном. Подъездные пути к дому асфальтирована. В селе железнодорожная станция, до автомагистрали М-5 Урал- 8км. Юридическая ситуация: дом и земельный участок в собственности; один взрослый собственник; долгов и обременений нет, материнский капитал не использован; документы к сделке готовы!!! Строили для себя, продаётся в связи с переездом в город. Разумный и обоснованный торг , после сделки остаётся почти вся мебель, техника по договоренности. Звоните!!! покупайте ДОМ Своей Мечты! ПРОСМОТР строго по предварительному ЗВОНКУ!!! Арт. 113698276





























































