


116 601 ₽/м²
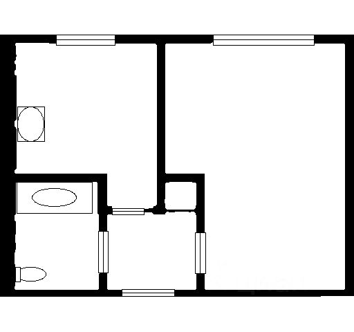
Продаётся 1-комнатная квартира в строящемся доме (Корпус 1), срок сдачи: IV-кв. 2026, общей площадью 38.07 кв.м., на 2 этаже. Жилой комплекс "Дуэт" - дом комфорт-класса. Жилой дом представляет собой четырнадцатиэтажное кирпичное здание П-образной формы, состоящее из четырёх блок-секций. В комплексе представлены квартиры различной площади - от однокомнатных до трёхкомнатных, с тщательно продуманными планировками. В каждом подъезде по два современных бесшумных лифта (пассажирский и грузопассажирский), в которых никогда не тесно - комфортно ехать большой компанией и перевозить крупногабаритные вещи, велосипеды и коляски. В жилом комплексе высокие и прозрачные входные группы, домофон в тёплом тамбуре, понятная навигация на этажах. Возле дома оборудованы автопарковочные места. На техническом этаже расположены кладовые помещения, которые жильцы могут использовать по своему усмотрению. На первых этажах домов будет создана уникальная среда для комфортной жизни. Здесь расположатся пространства для прогулок и отдыха, а также магазины и коммерческие помещения. СЗ "Альянс-Групп", занимаясь строительством многоквартирных жилых комплексов, применяет современные технологии и высококачественные материалы, которые отличаются высокой прочностью и долговечностью. Каждый жилой комплекс разрабатывается с учетом мельчайших деталей: от привлекательного внешнего вида зданий до эргономичных и удобных планировок, а также тщательного благоустройства придомовых территорий и обеспечения безопасности. Продается 1-комнатная квартира на 2 этаже в Стерлитамаке.















































































