Только на Циан
36 000 000 ₽
Продается двухэтажный дом площадью 123.8м2 на 34 сотках в Октябрьском районе гор. Уфы, д. Зинино.
Вся земля в собственности. Возможно межевание, деление участка и продажа частями. Варианты оговариваются, готовы к диалогу.
Дом построен в 2014 году, введен в эксплуатацию 23.02.2015 года.
Фундамент бетонный монолитный, стены керамзитоблочные, перекрытия деревянные отепленные, крыша профнастил, полы дощатые по деревянным лагам, ламинат, окна пластиковые.
Отопление АГВ, вода колодец 7 колец, газоснабжение сетевой (природный), канализация выгребная яма.
Фасад дома утеплитель и декоративная штукатурка "короед ".
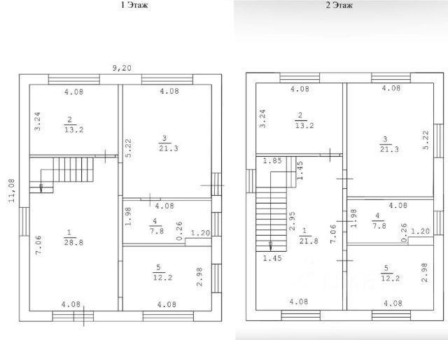
Первый этаж вмещает в себя тамбур, прихожую, светлую кухню с бытовой техникой BOSCH, столовую зону , гостиную, санузел и подпол для хранения.
На втором этаже расположены три спальни, гардеродная, ванная комната с дущевой кабиной.
На участке имеется баня площадью 27.2 м2 из керамзитобетонных блоков, обшитая вагонкой внутри и декоративной штукатуркой снаружи с отдельной парной и комнатой отдыха. Печь в бане настоящая кирпичная, что позволяет очень долго держать тепло.
К дому пристроен гараж площадью 52.2 м2 из бетонных блоков, утепленный, с помещением для хранения хоз. инвентаря и глубоким оборудованым погребом. Выход из гаража прямо на крыльцо дома, очень удобно , не нужно рассчищать дорогу от снега зимой.
Дом хорошо освещен солнцем с утра до позднего вечера.
Окна кухни и двух спален выходят в ухоженный сад с плодовыми деревьями, кустарниками и своим сосновым лесом, в котором можно собирать маслята и рядовки в течение всего сезона.
Остановка транспорта находится в пешей доступности (7 минут), магазины "Сабантуй" "Пятерочка", "Монетка", "Красное и Белое", "ОЗОН ", "WB", кафе, аптеки.
Школа , детский сад и поликлиника находятся в с. Нагаево в 10 минутах езды . Школьников возит школьный автобус.
Место шикарное, высокое, не топит, все растёт, воды в достатке, благоприятное, рядом находится мечеть, пруд, лес,Черное озеро, река Белая.
От дома до ост. Монумент Дружбы 13 км ( 15- 20 минут на машине).
Продажа от собственника. дом от хозяина в деревне Зинино республики Башкортостан.







































































